ドライシステムでの給食


☆ドライシステムってなに?

ドライシステムの「ドライ」とは,「かわいた」といういみです。なるべくゆかに水をながさず,ゆかがかわいたじょうたいできゅうしょくをつくるくふうがされています。


【ドライシステムのよいところ】

さいきんがふえるのをふせぐ・・・・・ゆかがかんそうしているので湿度(しつど・・くうきの中の水分が多いとしつどがたかいといいます)がひくく,しめったところがすきなさいきんがふえにくくなります。

さいきんが食べものにつくのをふせぐ・・・・・ゆかに水をながさないので,水がはねることによってさいきんが食べものにつくのをふせぐことができます。

くつやエプロンがかるいものになる・・・いままでは長ぐつをはき,ゴムのエプロンをしてきゅうしょくを作っていましたが,ドライシステムのきゅうしょくしつでは長ぐつより軽いズックぐつをはき,ドライ用の軽いエプロンをします。


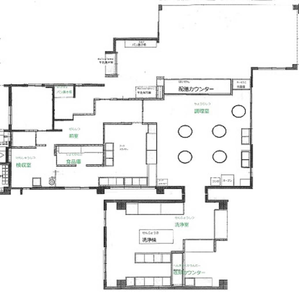
【横浜市のドライシステム】
・平成26年度は156校(セミドライふくむ)がドライシステムになりました。  
・検収室(けんしゅうしつ),下処理室(したしょりしつ),調理室(ちょうりしつ),洗浄室(せんじょうしつ),残さ(ざんさ・・きゅうしょくののこり)しょりコーナー(室)にわかれています。


【A小学校の給食室平面図】
平面図の中でマウスポインタをあわせるとゆびの形になるところをクリックしてみてください。せつめいとしゃしんが出ます。




食べものアイランドにもどる